Войны каменного века
Автор: Евгений КрасКаменный век в литературе – тема редкая, практически нетоптаная. Оно и понятно – слишком мало информации. Но ведь она есть и говорит о том, что «обрывок шкуры мамонта вокруг могучей талии» немного не соответствует тому, что было. Всё значительно сложнее. И я тут подобрал пару любопытных фактов и написал о них раньше. Хочу показать ещё один.
Не известно, что подумал археолог А.А. Миллер, когда забрёл в эти места в далёком двадцать шестом году, но видимо он сразу сообразил, что дело тут не чисто, и не зря ещё при царе-батюшке про эти места слухи ходили по кабинетам. В смысле, что эти грубые камни не просто так уложили в грубую стеночку. Поэтому он сообщил об этом, кому следует, и где следует сделал пометочки, но время было тяжёлое, и о его находке на время забыли. Руки археологов… точнее ноги, дошли до этих мест только через сорок лет. И когда там немного покопали, то произошла сенсация с революцией, которая стала широко известной в очень узком, прямо микроскопическом, кругу специалистов. Шутка сказать – нашли крепость времён энеолита! Сейчас практически шёпотом говорят, что это самая древняя каменная крепость в Европе. И, наверное, всё было бы намного шумнее и ярче, но крепость наших предков угораздило построить в России, в которой согласно «концепции» исторической «науки» никаких древних цивилизаций быть не могло. А если здесь археологи и обнаруживают какие-то следы, которые ни спрятать в запасниках, ни уничтожить (что в принципе одно и то же), то они начинают лихорадочно искать любые народы, которые могли бы это построить и оставить, кроме того, который здесь живёт.
То есть начинается очень умная «научная» дискуссия о том, какие именно из нерусских людей могли это сделать? Финны? Угоры? Иранцы?.. В принципе всякий раз происходит одно и то же – эта дискуссия становится со временем всё менее шумной и всё более занудной, а потом и вовсе затихает. Ведь главный результат уже достигнут – ещё раз «убедительно доказано», что жившие на Руси люди были нерусскими, а русских не было вообще. Ведь то, что у русских никаких предков никогда не было – это же так естественно и научно, что доказательств не требует. Это знает любой мало-мальски грамотный человек. А те, кто пытается доказать, что все люди рождаются от папы с мамой – просто шарлатаны, фрики и вообще фоменковцы. А их аргументы слушать не нужно, потому как они шарлатаны, фрики и прочее по списку. Доказательств этой «научной концепции» приводить опять-таки не нужно, потому что это и так понятно любому грамотному человеку… ну и так далее. И вообще, если даже когда-то и были у славян (слово русы произносить нельзя) какие-то предки, то они говорили на иранском, финно-угорском… чёрт, да хоть на суахили. Важно, чтобы не на русском. Политика-с.
Но если огонь открытия удалось затушить, то дым всё ещё идёт. Раскопки кое-как продолжаются. Иногда что-то даже считают возможным сообщать широкой публике… что-то достаточно отвлечённое от главного события – от крепости и её обитателях.
Совсем недавно наши славные археологи сделали там очередное замечательное дело – они уничтожили древнее захоронение девушки, умершей в 17 веке до н.э. Похоже, что на вот этом фото оно: 
(Мне оно здорово напомнило конструкцию некоторых захоронений в Алтайском крае, кстати). Пришло время археологам давать интервью, писать научные статьи, которые большей частью состоят из домыслов, но будут непременно встречены благосклонно коллегами. Поспорят, разумеется, по поводу каких-нибудь мелких второстепенных деталей, для того чтобы продемонстрировать видимость «научной дискуссии», но если утверждённая в узком кругу действующая «концепция» не будет затронута, то все останутся при наградах и регалиях.
В целом – всё, как обычно. Поэтому археолог Павел Ларенок гордо отчитывается о проделанной тяжёлой работе по уничтожению захоронения «Курган Бургуста». Точнее даже не одного захоронения, а целого курганного погребального комплекса. Согласно сообщениям в Сети, уничтоженный под Ростовом курган имел очень сложную структуру, в которой «каждая могила была укрыта конструкцией из дерева и соломы, а сверху она обкладывалась «пластушкой» – местным каменноугольным сланцем». Короче ребята, наши с вами предки сделали всё что могли для того, чтобы осталась хоть какая-то память о том, что они жили в этих местах, но разве можно остановить мощь современной науки? И вот Павел Ларенок гордо сообщает о том, что для уничтожения памятника нашей истории «…пришлось вывезти десять «Камазов» «одной только пластушки»»… в неизвестном направлении. Всё – дело сделано! Древний курган путём неимоверных усилий уничтожен надёжно и бесповоротно! Теперь нам и нашим потомкам не останется ничего, кроме того, что пожелают сообщить нам г-н Ларенок с подельниками коллегами. Ну, это, если они вообще посчитают нужным что-то сообщить. Ведь даже сам факт существования столь сложного сооружения уже может пошатнуть «концепцию», согласно которой наши предки в те времена то ли ещё с деревьев не слезли, то ли их ещё с Марса не прислали. Короче не было их тогда в отличии от всех остальных народов. Поэтому сейчас можно спокойно рассказать о том, что там были похоронены финны с уграми… а может иранцы, а может кто другой – неважно. Сейчас осторожно говорят про «прикавказские народы». Что это за биологический вид такой – не понятно. Видимо «верхи» ещё не решили, кому подарить «великих предков». Но главное решение конечно же уже есть – это были нерусские.
Какой-либо информации, как всегда, до смешного мало, а для широкой публики достаточно пары-тройки маленьких фоток начала работ по уничтожению курганного погребального комплекса: 
Потом нам рассказывают про украшения из камней, которые точно привезли откуда-то издалека (минимум с Кавказа, плюс намёк на «Поднебесную империю»), про ракушки с берегов Индийского океана. То и другое есть повод рассказать о том, что там, в дальней дали, жили и процветали могучие мудрые цивилизации, у которых были токарные станки, на которых и были сделаны эти самые бусинки. Фотографий бусинок не показали. А зачем? Можно ведь отлично показать лицом «богатое захоронение» и какую-нибудь одинокую мелочь типа вот этого украшения: 
Совсем лишним было бы упоминание про бусинки сложной цилиндрической формы из кости мамонта, которые нашли в товарном количестве в знаменитом захоронении запредельной древности «Сунгирь» или про «Костёнки». Забавно, что и ходить до Воронежа и севернее было не нужно. Дело в том, что всего в одном километре от крепости в 1990 году археологи Киашко и Ромашенко нашли захоронения 4 человек каменного века. По описанию кости густо посыпаны охрой, и при них... свыше трёх сотен костяных бусин. Выше них ещё один покойник, а с ним 10 трапециевидных и цилиндрических костяных бусин. И это не трубчатые кости... опять токарный станок? Допустим, что так, но почему это мастерство не досталось потомкам-то? Почему авторство изделий из камня нужно обязательно искать где-то далеко? Камней нет? Хорошо. Камни привезли, а изделия делали на месте.
Никогда! Нужно обязательно сказать о том, что бусинки были сделаны чёрти-где представителями древних могучих цивилизаций юга… востока… чёрт, да хоть Марса. Главное, чтоб не на этом месте. Здесь ведь Россия, где следов цивилизации быть не может, а если вдруг нашлись, то их оставили только нерусские. Ну, и чтобы отстали, ещё можно показать вот такую кривую картинку, нарисованную то ли левой ногой в пьяном угаре, то ли в стиле позднего Пикассо: 
Не совсем понятно, почему эту кривульку назвали «реконструкцией». Отметив между прочим, что про живших здесь людей ничего толком не известно, уверенно заявили, что покойная была «наряжена в костюм невесты». Как можно совместить эти два заявления – мне совершенно не понятно.
Есть и ещё одно своеобразное заявление археологов касательно погребального комплекса. Сказано, что захоронения здесь были исключительно важных персон и пользовались им аж до 13 века нашей эры. За этим может последовать очень простой и логичный вывод о непрерывности традиции на протяжении минимум 25 столетий. А раз одна традиция – то и народ один. Но этот вывод почему-то не сделали… похоже, что в «концепцию» он никак не помещается. А, ну конечно же – «Великое Переселение Народов» ведь тогда легко накроется медным тазом.
А так… захоронения ведь на самом деле имели серьёзные отличия. Покойных укладывали по-разному. Набор предметов тоже был разным. А тут ещё три «каменные бабы» нашли. Две скверные фотки даже показали. Вот они: 
Представляете – захоронений разных уничтожили уже за две сотни, а «бабы» всего три… есть о чём подумать.
Но это ещё всё по-божески. Ведь про остальные захоронения комплекса вообще ничего не сказали. Только мельком упомянули, что рядом с захоронением девушки нашли ещё одну яму, где лежало «чучело лошади». Что за чучело? Из чего сделано? Как выглядело? Как смогло сохраниться? Вопросы без ответов. Зато на основании наличия чучела лошади сразу обозвали покойную «степнячкой», а всех её родственников «кочевниками». Как совместить сложное инженерное сооружение погребального комплекса с двойной крепостью и кочевников, не сказали. Что до других покойных, то даже сколько их было, не понятно. Дело закрыто. Забудьте.
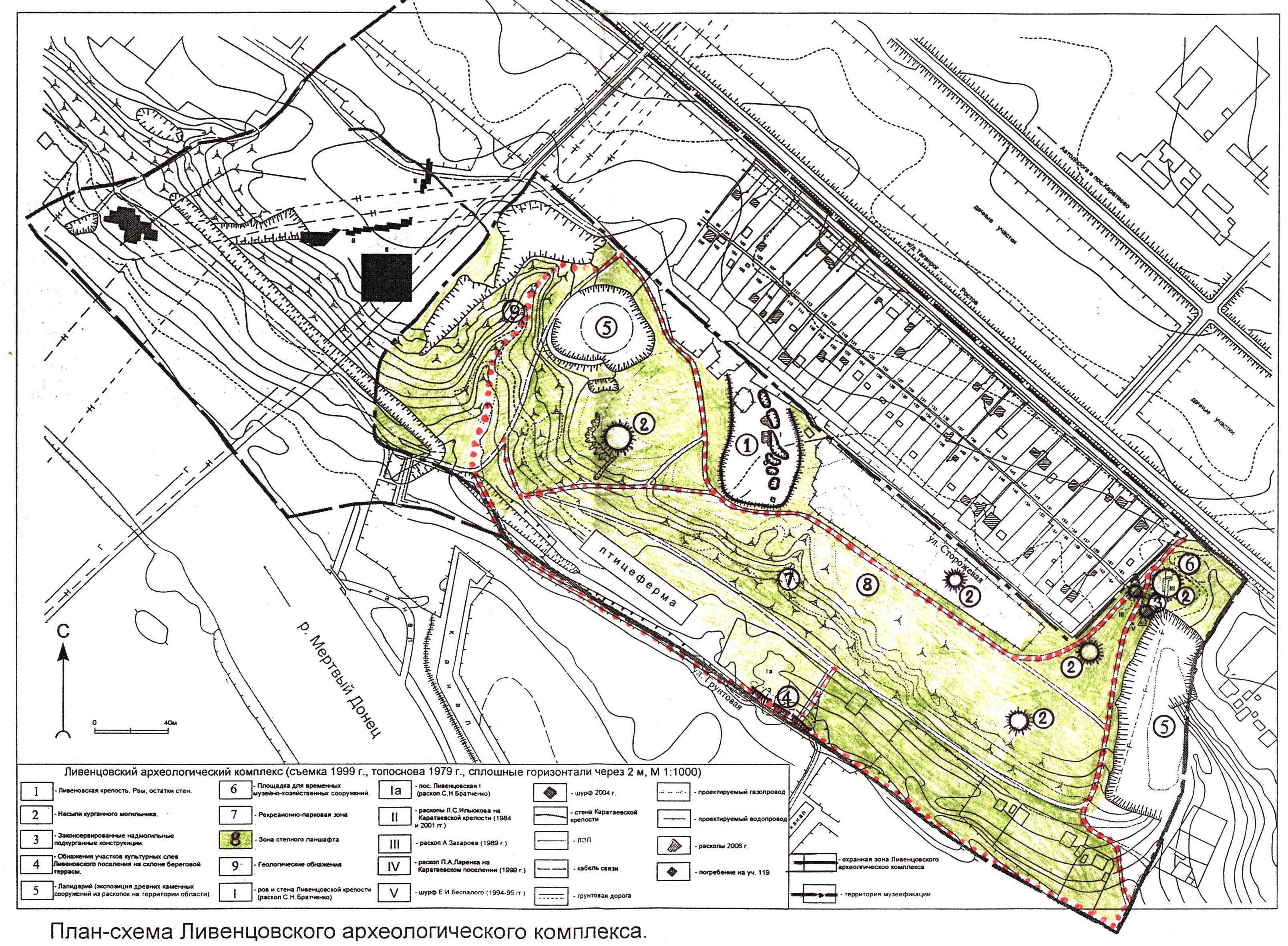
И это не какой-то «вопиющий факт», а стандартная практика, которая сложилась не вчера. Есть ситуации покруче. Это я уже, собственно, про Левенцовско-Каратаевскую крепость…
Как я уже выше написал, ковырять землю в этих местах начали в 60-х годах. Процесс потихонечку продолжается до сих пор, но делается это достаточно келейно и без особого шума. Это уже вызывает вопросы вообще-то. Ведь сказали уже про запредельную древность сооружения, оценённую не менее чем на полтысячи лет старше легендарной мифической Трои, которую, кстати, так и не нашли. И всё – тишина. Что происходит, господа учёные? Ведь крепость, построенная за две тысячи лет до н.э. – это совсем не шуточки. Или мы чего-то не знаем? Может таких крепостей у нас просто пруд-пруди и это банальность? Почему никто не поднимает вселенский шум по поводу того, что эти места уже дважды продали под элитную застройку? Любимый припев про отсутствие денег слушать порядком поднадоело. Когда строили Крымский мост, то денег и сил нашлось легко на всю Крымскую трассу с окрестностями, а здесь всего 4 гектара с хвостиком. Значит – можно, если нужно? Получается, что не нужно.
Больше всего информации об этом археологическом памятнике времён 60-х годов. Тогда здесь работал археолог Станислав Никифорович Братченко. Даже есть фото аэрофотосъёмки. Вот оно: 
Но тут – понятное дело, ведь поднять для съёмки самолёт в шестидесятых годах было легко и просто. А в наше время отправить в небо дешёвенький китайский «квадрик» с камерой – проблема проблем!
Братченко со своей бригадой не только копал усердно, но ещё и рисовал немного. По нему две крепости выглядели как-то вот так примерно: 
Ещё мне удалось найти карту всего этого района, перенасыщенного следами активной жизни людей на протяжении очень длительного времени. Вполне читаемо, хотя и с головной болью: 
Бригада Братченко также обнаружила яркие следы штурма древней крепости. Они стоят того, чтобы про них упомянуть. Одно плохо – фотографий практически нет.
Длина крепостной стены Левенцовской крепости 280 м (Каратаевская чуть меньше). Толщина стен 3-4 метра. Высота стен изначально по оценке Братченко могла достигать 5 метров. Размеры окружающего крепость рва: ширина 6 м, глубина – 2 м. Ров частично пробит в известняковой скале. В местах прохода имеются перемычки, которые ведут к воротам. Каменная кладка грубая, но камни довольно крупные попадаются, археологи назвали её циклопической. Проходы сделаны так, что стена получается сделанной уступами. Вот так это нарисовал Братченко: 
Как-то «омолодить» крепость, сделать вид, что она моложе 4 тысяч лет, не получится – во время раскопок было найдено около тысячи кремнёвых наконечников стрел, которые применяли во время штурма. Некоторые имеют сколы, характерные для удара о каменную поверхность. Также на дне рва был обнаружен скелет человека, вооружённого боевым каменным топором. Внутри крепости были обнаружены остатки девяти прямоугольных строений размерами 13(15) на 5(7) метров, сложенных из камня. Также была найдена керамика. Наконечник типичный: 
Вот прорисовка археологов керамики и наконечников стрел: 
А вот и сами горшки, на мой взгляд довольно приличного качества изготовления: 
Братченко отнёс поселение к специально выделенной культуре, что свидетельствует о том, что обнаруженные вещи отнести к какой-то одной «культуре» невозможно. И он же отметил некоторое сходство с поселением «Каменка» в Крыму. Крепость после штурма, по всей вероятности, не восстанавливали, но жизнь здесь продолжалась, и весьма активная жизнь.
Захоронения, найденные недалеко от крепости, относят к «срубной» культуре, что дало археологам повод предположить, что крепость построили представители «катакомбной» культуры, а атаковали её пришедшие с севера «срубники». Но это всё очень зыбко. Более поздние захоронения относят к скифам.
Сейчас крепостные стены выглядят вот так: 
То есть результаты работы археологов вообще не прослеживаются. Камни растаскиваются местными несознательными гражданами для хозяйственных нужд. Короче – всё очень печально.
В отсутствии достоверной, качественной и внятной информации от археологов в сети, естественно, возникают самостоятельные версии разных специалистов и не очень специалистов. Некоторые из них отличаются хорошей проработкой и остроумием. Как, например вот эта: https://yuri-ost.livejournal.com/2780.html , в которой Левенцовскую крепость привязали к Троянской войне.
Другие (в Дзене в основном) написаны явно только для того, чтобы быть написанными. Просто не могу не продолжить хоть немного. Там один гражданин вообще решил «окунуться в прошлое» со всей горячностью своего воображения. По его описанию крепость построили люди, вокруг которых бродили стада «бизонов, шерстистых носорогов и мамонтов», на которых строители крепости и охотились во время перекуров. Упомянув про широкий и глубокий ров вокруг крепости, он сразу же выдвинул версию, что его выкопали и вырубили в известняке, чтобы защититься от «атак колесниц» и всадников. Мне очень понравилось… особенно про атаку крепости на колесницах и верхом. Это он фильмов Бекмамбетова что ли насмотрелся? Или у него возле дома конопля заколосилась? Хотя версия про колесницы могла быть навеяна израильской «колесницей», сиречь «Меркавой». Не знаю, но получилось лихо.
Ещё один заинтересованный гражданин не поленился и сам смотался на место событий. Осмотрев то, что сталось от двух крепостей, он задумался над особенностями архитектуры и вообще выдвинул предположение о том, что назначение сооружения могло не быть военным. То есть возможно, что это была совсем не крепость, а нечто другое (не хочу уподобляться археологам и произносить их спасительное словосочетание «культовое сооружение»). Толстые стены? Так попробуйте сделать кладку высокой. Чем выше стена, тем меньше её устойчивость. Рисунки «реконструкции» нарисовать можно какие угодно. Их и рисуют: 
Но посмотрите внимательно – тонкая верхняя стеночка точно устоит? То есть на реконструкцию эта картиночка «не тянет» никаким боком. Стена должна быть толстой не для того, чтобы её не пробили тараны, а просто для того, чтобы не сломаться под собственным весом.
Ещё он упоминает о том, что с западной стороны остатков стен не наблюдается. Тут есть пара вариантов. Либо было достаточное естественное препятствие, либо камни стены растащили потомки, либо самодеятельный исследователь прав и это вообще не крепость. Ответить на все вопросы не будет возможности никогда, но если раскопать все сооружения полностью, то появится шанс получить ответы хотя бы на основные. А сейчас даже про генетический анализ останков все археологи что-то скромно помалкивают.
Однако шутки шутками, но даже такие публикации кое о чём свидетельствуют и в свете происходящих событий полезны. Я про то, что широкой общественности это место и эти находки совсем не безразличны. А это означает, что у него высокий туристический потенциал. Если бы пришлось его рекламировать, то каких-то больших усилий прилагать не придётся. Что, никто этого не понимает? Но так не бывает. Поэтому спрашиваю ещё раз – что происходит?
В принципе можно поговорить и о датировке. Если смотреть строго по находкам, то из тех скудных сведений, которыми пожелали поделиться с общественностью отечественные археологи, к ней возникают вопросы. Например, сообщения о бусах, выточенных их костей поневоле относят нас к аналогичным бусинам стоянки «Сунгирь» (https://author.today/post/9966 ), а это минимум 34-36 тыс. лет тому назад (кстати, люди, похороненные в «Сунгире» погибли явно в результате боевых действий). Можно посмотреть на другую стоянку, известную с 19 века – «Мезин» (https://author.today/post/46459 ). Её датировка – от 19 до 32 тыс. лет тому назад. Можно назвать и другие археологические центры. Причём некоторые находки, сделанные в этих местах, заставляют просто изумляться уровню развития наших далёких предков. А некоторые изделия древних просто ставят в тупик не только технически безграмотных историков с археологами, но и вполне серьёзных специалистов. Это и браслет-календарь из «Мезина», выпрямленные бивни мамонта и горшок-термос из «Сунгиря». Список неполный, могу вас уверить. После этого Левенцовскую крепость датируют всего 4 тысячами годами. Причём метод датировки археологи тихо опустили, как лишнюю подробность. Здесь на ум невольно приходит коварная мысль о том, что товарищ Братченко просто поосторожничал связать каменную крепость с такой датировкой.
На мой взгляд он поосторожничал правильно, но несколько перестарался. Ведь города Синташты (более известны как «Аркаим») появились 5 тысяч лет тому назад, а там уже жили-поживали металлурги. В Левенцовской крепости металлами даже не пахнет. Во всяком случае штурмовали крепость с каменным оружием. Отсюда напрашивается цифра никак не меньше 6-7 тысяч лет от наших дней. Думаю, что главные исследования ещё впереди (если они вообще будут). Поживём-увидим.
Ну, а писателям можно потренироваться на данном узле загадок в умении логически мыслить. То есть попытаться на основе имеющейся информации просчитать, как на самом деле жили обитатели крепости. Ведь нужно быть круглым идиотом, чтобы считать их охотниками и собирателями. На мой взгляд это мог быть либо «город мастеров», либо обитатели уже освоили земледелие. Только эти виды деятельности могли приносить им достаточное количество продуктов и материалов для безбедной жизни. Ибо с голодухи никто крепостей не возводит. Короче... сложно было всё в те времена. Да и когда говорят «каменный топор», то в данном случае имеют в виду довольно сложное изделие, очень похожее на топоры «фатьяновской культуры». Вот такой, например: 
Ну, хватит, наверное...